
















Opis nieruchomości
www.COMMERCIALCONCEPT.pl


Oferujemy do wynajęcia powierzchnię biurowo - usługową w wolnostojącym budynku w dzielnicy Czyżyny w rejonie ul. Sołtysowskiej.
OPIS OBIEKTU:
Budynek o łącznej powierzchni użytkowej 1177m2 składa się z 3 kondygnacji:
- parter o powierzchni: 466,50m2
- I piętro o powierzchni: 361,00m2
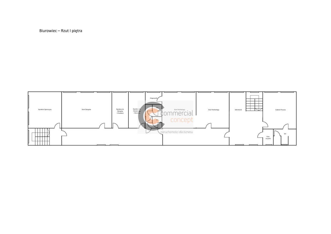
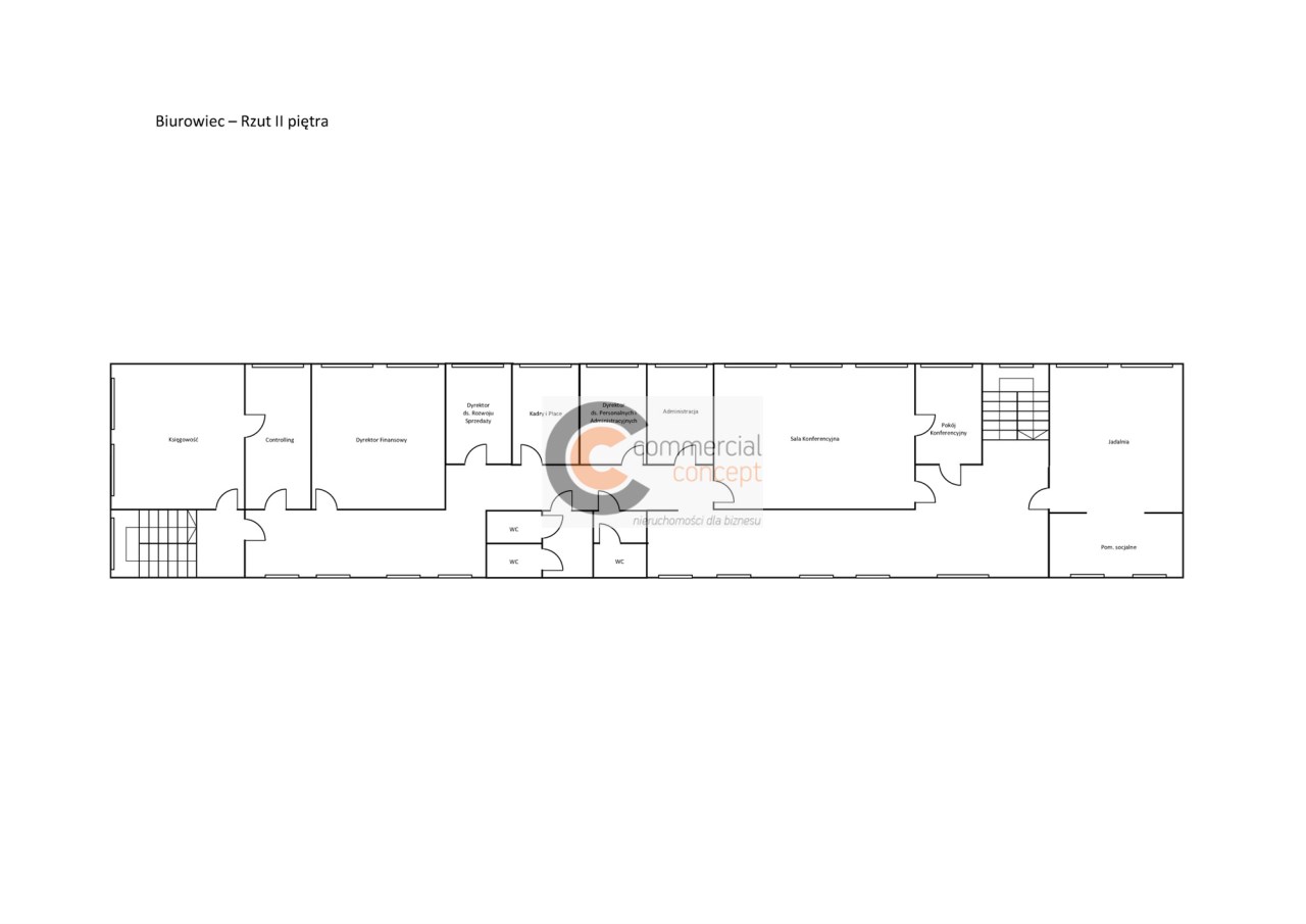
- II piętro o powierzchni: 349,50m2
Na parterze znajduje się przestrzeń biurowo usługowa nadająca się zarówno pod biura jak i różnego rodzaju usługi, gabinety, część warsztatowa, sklepowa itp.
Powierzchnia na I i II piętrze to typowa przestrzeń biurowa podzielona na kilkanaście pokoi w układzie gabinetowym, sale konferencyjne, część socjalną - kuchnię praz toalety.
Powierzchnie są wykończone i gotowe do wejścia. Wymagają jedynie ewentualnego odświeżenia. Budynek posiada dwie klatki schodowe ułatwiające komunikację między piętrami.
Budynek znajduje się na ogrodzonym terenie z parkingiem i częściami zielonymi do wykorzystania przez najemcę. Ilość miejsc parkingowych do ustalenia. Może być przeznaczony m.in. pod siedzibę firmy, szkołę, przychodnię medyczną itp.
DOSTĘPNOŚĆ OBIEKTU: do ustalenia
KOSZTY:
Czynsz najmu: 40,00 PLN / m2 netto + VAT
Opłata eksploatacyjna: 8,00 PLN / m2 netto + VAT
Media wg zużycia: prąd, woda, śmieci
Zadzwoń i umów się na prezentację!
Kontakt: Łukasz Figat | +48 731 933 334 | lukasz@commercialconcept.pl
ZAREZERWUJ SWOJĄ POWIERZCHNIĘ JUŻ DZIŚ!
tel: 731 933 334,
731 933 335
lukasz@commercialconcept.pl
Sprawdź też listę podobnych biur do wynajęcia w Krakowie na stronie ***WWW.COMMERCIALCONCEPT.PL***
Ogłoszenie nie stanowi oferty w rozumieniu przepisu art. 66 § 1 Kodeksy cywilnego, jest tylko zaproszeniem do zawarcia umowy, stosownie do przepisu art. 71 Kodeksu cywilnego.
Opis oferty zawarty na stronie internetowej sporządzany jest na podstawie oględzin nieruchomości oraz informacji uzyskanych od właściciela, może podlegać aktualizacji i nie stanowi oferty określonej w art. 66 i następnych K.C.
Nota prawna
Ogłoszenie nie stanowi oferty w rozumieniu przepisu art. 66 § 1 Kodeksy cywilnego, jest tylko zaproszeniem do zawarcia umowy, stosownie do przepisu art. 71 Kodeksu cywilnego.
Opis oferty zawarty na stronie internetowej sporządzany jest na podstawie oględzin nieruchomości oraz informacji uzyskanych od właściciela, może podlegać aktualizacji i nie stanowi oferty określonej w art. 66 i następnych K.C.